Den Haag

Johannes Camphuijsstraat 189

Bekijk 36 foto's

Heeft u interesse?

Om een bezichtiging aan te vragen, verzoeken wij u vriendelijk om via de onderstaande link uw gegevens in te vullen. Wij nemen vervolgens zo spoedig mogelijk contact met u op!

Omschrijving

WELKOM IN DEN HAAG
Heerlijk dubbel bovenhuis in het hart van het Bezuidenhout. Dit ruime dubbel bovenhuis van 108 m² is grotendeels gerenoveerd en ligt in de populaire en trendy wijk Bezuidenhout. Op een goede locatie, vlakbij de gezellige Theresiastraat en het prachtige Haagse Bos, geniet je hier van alles wat Den Haag te bieden heeft: leuke winkels, sfeervolle restaurants, veel groen en een uitstekende bereikbaarheid. De woning beschikt over een royale L-vormige woonkamer met een halfopen keuken, drie slaapkamers en twee zonnige balkons op het zuidwesten. Daarnaast zijn de badkamer en het toilet volledig vernieuwd. Een instapklare woning waar comfort, stijl en locatie perfect samenkomen.

WIJK - Bezuidenhout
Gelegen in het hart van de geliefde en trendy wijk Bezuidenhout, nabij het centrum van Den Haag. Deze populaire buurt heeft van alles te bieden. In de levendige Theresiastraat vind je een grote variëteit aan winkels, gezellige terrassen en sfeervolle eetgelegenheden. Midden in de wijk bevindt zich het eeuwenoude Haagse Bos, een prachtig natuurgebied waar ook paleis Huis ten Bosch ligt. Hier kun je heerlijk hardlopen, picknicken aan het water of wandelen. Een fijn combinatie van natuur en stadsleven.

INDELING
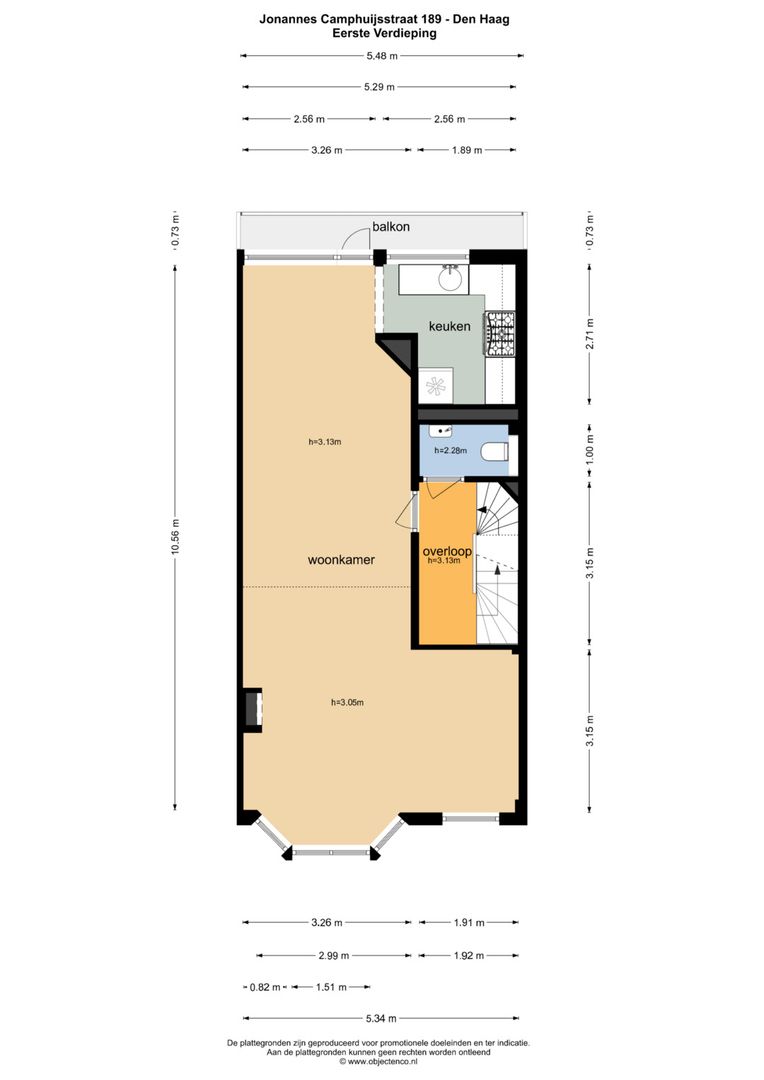
Entree op straatniveau, hal met meterkast, trap naar de 1e verdieping.

Eerste verdieping:
Overloop met een nieuw ruim toilet met fontein. De L-vormige woonkamer met erker is doorgebroken, licht en comfortabel, met hoge plafonds en is voorzien van een fraaie visgraat parketvloer. Aan de achterzijde is een deur met toegang naar het balkon, de semi-open keuken is voorzien van diverse inbouwapparatuur, waaronder een 6-pits gasfornuis met oven, koelkast en vaatwasser.

Tweede verdieping:
Overloop met lichtkoepel, kast met cv-combiketel en wasmachineaansluiting. Aan de voorzijde liggen een ruime slaapkamer en een kleinere kamer (slaap/study). Aan de achterzijde bevindt zich de nieuwe badkamer met inloopdouche, wastafel en tweede toilet. Daarnaast is er een derde slaapkamer met toegang tot een ruim, zonnig balkon, een heerlijke plek om buiten te zitten en te ontspannen.

ISOLATIE EN VERWARMING
Energielabel D. De woning is volledig voorzien van dubbele beglazing. Verwarming en warm water geschieden via een CV-combiketel. Woning is gebouwd in 1914.

PARKEREN
De woning bevindt zich in een gebied waar een parkeervergunning verplicht is. Deze kan eenvoudig en snel worden aangevraagd bij de gemeente Den Haag, op basis van huidige regelgeving en beschikbaarheid. De kosten bedragen circa € 95,- per jaar.

VERENIGING VAN EIGENAREN
De VvE bestaat uit 5 leden en is ingeschreven bij de Kamer van Koophandel. De opstalverzekering is collectief afgesloten voor het gehele complex. De servicekosten worden door de VvE op een later moment vastgesteld.

HIGHLIGHTS
- Woonoppervlak 108,30 m² (conform NEN2580)
- Inhoud 421,45 m³ (conform NEN2580)
- Eigen grond
- Energielabel D
- Volledig voorzien van dubbele beglazing
- Nette keuken voorzien van inbouwapparatuur
- 3 slaapkamers
- 1 badkamer
- 2 toiletten
- Volledig voorzien van een houten vloeren en laminaat vloeren
- 2 balkons gelegen op het zuid-westen, heerlijk genieten van de zon
- Zeer populaire locatie
- Niet-bewonersclausule van toepassing
- Ouderdomsclausule van toepassing
- Asbest- en loodclausule van toepassing
- As is, where is-clausule van toepassing
- Vraagprijs € 575.000,00 kosten koper
- Snel beschikbaar
- Alle stukken betreffende dit appartement zijn bij ons kantoor op te vragen

IK WIL DE WONING BEZICHTIGEN
Dat is zeker mogelijk! Om deze woning te bezichtigen, adviseren wij je om te reageren via e-mail of via digitale platformen zoals Funda of Pararius. Je ontvangt vervolgens een link waarmee je zelf een tijdslot kunt kiezen en je bezichtiging kunt inplannen. Heb je toch liever direct contact? Bel ons dan gerust.

Disclaimer:
De informatie in deze presentatie is met zorg samengesteld, maar wij geven geen garanties met betrekking tot de volledigheid, nauwkeurigheid of actualiteit van de verstrekte informatie aangezien details kunnen veranderen. Wij raden u aan om de meest recente informatie altijd rechtstreeks bij de betrokken instanties te verifiëren. Wij waarderen uw begrip en staan klaar om eventuele vragen te beantwoorden.

Kenmerken

Overdracht

Prijs
€ 575.000 k.k.
Status
Beschikbaar
Oplevering
Per direct

Bouw

Soort appartement
Bovenwoning, Dubbel bovenhuis
Woonlaag
2
Soort bouw
Bestaande bouw
Bouwjaar
1914
Onderhoud binnen
Goed
Onderhoud buiten
Goed

Oppervlakten en inhoud

Woonoppervlakte
109m²
Inhoud
421m³

Indeling

Aantal kamer(s)
4
Aantal slaapkamer(s)
3
Aantal badkamer(s)
1
Verdiepingen
2
Voorzieningen
Mechanische ventilatie

Energie

Energielabel
D
Isolatie
Dubbel glas
Warm water
C.V.-ketel
Verwarming
C.V.-ketel
Ketel
(Combi-ketel, Eigendom)

Buitenruimte

Ligging
In woonwijk
Balkon
Ja

Garage

Locatie

[ { "address": "Johannes Camphuijsstraat 189", "zipCode": "2593 CM", "city": "Den Haag", "lat": 52.0828031, "lng": 4.3420126, "heading": 0, "pitch": 0 } ]

Bekijk verloop van de zon

Uw browser ondersteunt geen WebGL

Vergelijkbare woningen

Zeekant 103 Y, Den Haag
Loading...
Zeekant 103 Y, Den Haag
Loading...
Zeekant 103 Y, Den Haag
Loading...
Zeekant 103 Y, Den Haag
Loading...
Zeekant 103 Y, Den Haag
Loading...
Zeekant 103 Y, Den Haag
Loading...
Zeekant 103 Y Den Haag
Oppervlakte62m²
Slaapkamers1 slaapkamer(s)
DecoratieGemeubileerd
€ 460.000 k.k.
De Eerensplein 21, Den Haag
Loading...
De Eerensplein 21, Den Haag
Loading...
De Eerensplein 21, Den Haag
Loading...
De Eerensplein 21, Den Haag
Loading...
De Eerensplein 21, Den Haag
Loading...
De Eerensplein 21, Den Haag
Loading...
De Eerensplein 21 Den Haag
Oppervlakte130m²
Slaapkamers3 slaapkamer(s)
DecoratieGestoffeerd
€ 625.000 k.k.

Reageer

Uw bericht is naar ons verzonden. Wij nemen zo snel mogelijk contact met u op.

Sorry, we kunnen helaas niet met zekerheid vaststellen of u een mens of een geautomatiseerde bot/spammer bent. Hierdoor kunnen we het formulier dat u heeft ingevuld niet verzenden. Probeer het opnieuw of neem direct contact op met de makelaar via e-mail.

Er is iets mis gegaan met het versturen van het formulier.
Controleer of u alle velden (goed) heeft ingevoerd en probeer het nog een keer.

recaptcha
reCAPTCHA
PrivacyTerms
telefoon

Liever telefonisch contact?

U kunt ons van maandag t/m vrijdag van 08:00 tot 18:00 bereiken op

+31 (0)70 - 212 25 89

4.9/5
Onze klanten beoordelen ons met:
4.9/5
van

Goedemiddag 👋

Benieuwd naar de waarde van uw huis?

U weet het al binnen 1 minuut. Laten we beginnen!

Wat is de reden van uw aanvraag?
Ik wil graag...

Er zijn meerdere antwoorden mogelijk.

Wanneer wilt u verhuizen?

We zijn er bijna 🎉

Om het rapport op te maken hebben we een aantal gegevens nodig

recaptcha
reCAPTCHA
PrivacyTerms

Uw woningwaarde wordt berekend... 🚀

loading

Bedankt %name%! De woningwaarde van %address% is berekend 🥳

Check uw mail voor het rapport!

success
Wat is mijn huis waard?