Den Haag

Sweelinckplein 76

Bekijk 61 foto's

Heeft u interesse?

Om een bezichtiging aan te vragen, verzoeken wij u vriendelijk om via de onderstaande link uw gegevens in te vullen. Wij nemen vervolgens zo spoedig mogelijk contact met u op!

Omschrijving

WELKOM IN DEN HAAG – Tijdloze elegantie aan het Sweelinckplein
Gelegen aan het prachtige Sweelinckplein biedt dit uitzonderlijke en royale monumentale herenhuis 385,10 m² aan veelzijdige leefruimte, verdeeld over vier verdiepingen. Met in totaal 12 kamers, waaronder minimaal 6 royale slaapkamers en een luxe open keuken met eetkamer, biedt deze woning een zeldzame combinatie van charme, ruimte en flexibiliteit. Of je nu op zoek bent naar een extra lounge, ontvangstkamer, thuiskantoor, tv-kamer of gastenverblijf – deze woning past zich moeiteloos aan jouw levensstijl aan. De woning beschikt over 3 badkamers, een zonnige tuin op het zuidoosten van 84 m² en een balkon op het zuidoosten, zonder inkijk aan de voor- of achterzijde, wat zorgt voor privacy en rust.

Prachtige originele details zoals sierplafonds, schuifseparaties en glas-in-loodramen versterken het tijdloze karakter van het huis, terwijl moderne updates zorgen voor optimaal wooncomfort. Een waar juweel voor wie op zoek is naar ruim en stijlvol wonen in de stad, met flexibele kamerindeling. Altijd al willen wonen in een huis vol charme en karakter? Wacht dan niet langer en vraag vandaag nog een bezichtiging aan.

WIJK – Duinoord
De woning ligt in Duinoord, een wijk die zich kenmerkt door monumentale, gebogen straten en karakteristieke woningen van rond 1900 die voorzien zijn van sierlijke elementen zoals erkers, daklijsten, glas-in-loodramen, balkons en dakkapellen. Deze geven de wijk een chique uitstraling. Zowel de gezellige Reinkenstraat als de levendige Prins Hendrikstraat liggen op loopafstand. Hier vind je een verscheidenheid aan speciaalzaken, restaurants en lunchrooms. Ook de populaire Frederik Hendriklaan is eenvoudig te voet of met de fiets te bereiken. Zowel Scheveningen haven als Scheveningen strand liggen binnen handbereik. Internationale scholen, zoals de Duitse School en de Europese School, zijn binnen enkele minuten fietsen bereikbaar. Ook Den Haag Centraal Station is eenvoudig te bereiken per fiets of met het openbaar vervoer (tram 3, 11, 17 en buslijnen 21, 24), wat het reizen naar Rotterdam, Amsterdam en andere steden moeiteloos maakt. Gunstig gelegen ten opzichte van uitvalswegen.

INDELING
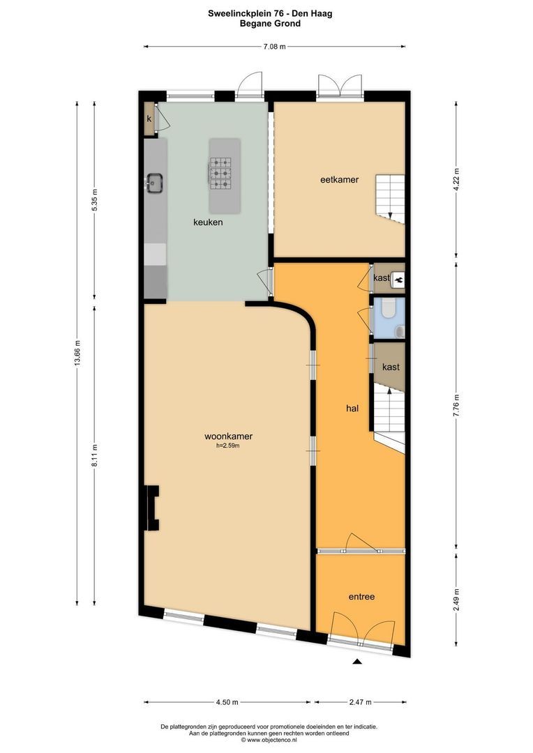
Begane grond
Entree op straatniveau, vestibule die toegang geeft tot de ruime hal, hier bevindt zich een separaat toilet met fonteintje en een bergkast.

De fraaie, lichte woonkamer is voorzien van op maat gemaakte boekenkasten. Het prachtige ornamentele plafond is een echte eyecatcher en er is tevens een mooie gashaard. De luxe open keuken heeft een overvloed aan bergruimte en is van alle gemakken voorzien. Zo is er een 5-pits gasfornuis met ruime oven en afzuigkap, combi-oven, vaatwasser, koelkast en vriezer. Aan het kookeiland is een gezellige bar gecreëerd. Tevens is er een vaste provisiekast. Aangrenzend aan de keuken bevindt zich de eetkamer. Via zowel de keuken als de eetkamer kan de riante tuin op het zuidoosten betreden worden. Zowel via de eetkamer als via de hal kan de eerste verdieping worden bereikt.

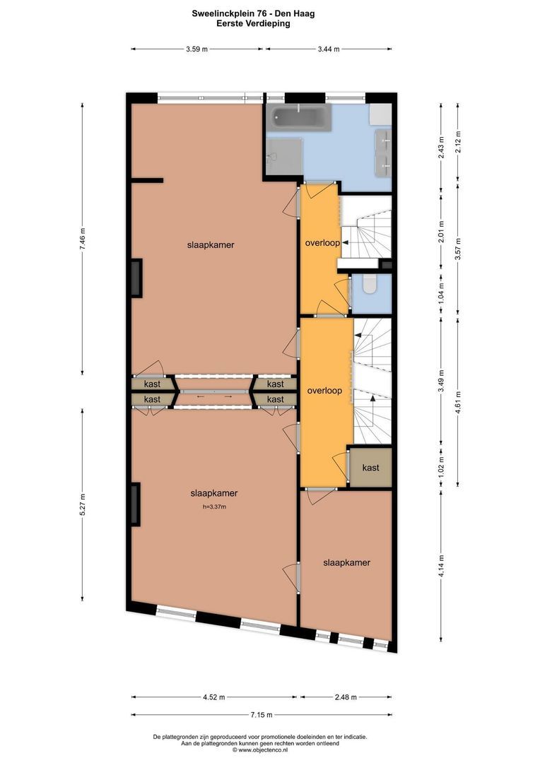
Eerste verdieping
Op deze verdieping bevinden zich twee bijzonder ruime en sfeervolle kamers met indrukwekkende sierplafonds. De originele schuifseparatie met vaste kasten aan weerszijden scheidt de ruimtes op elegante wijze, waardoor ze perfect te gebruiken zijn als een luxe lounge, ontvangstkamer, tweede woonkamer of muziekkamer. Dankzij de grote ramen genieten beide ruimtes van een prachtige natuurlijk lichtinval, wat bijdraagt aan een ontspannen en uitnodigende sfeer.
Daarnaast is er een derde kamer, momenteel ingericht met een vast bureaublad, ideaal als thuiskantoor of creatieve werkplek. De badkamer op deze verdieping is uitgerust met een dubbele wastafel met meubel, een ligbad, een regendouche en een designradiator. Ook bevindt zich hier de opstelplaats voor de wasmachine.

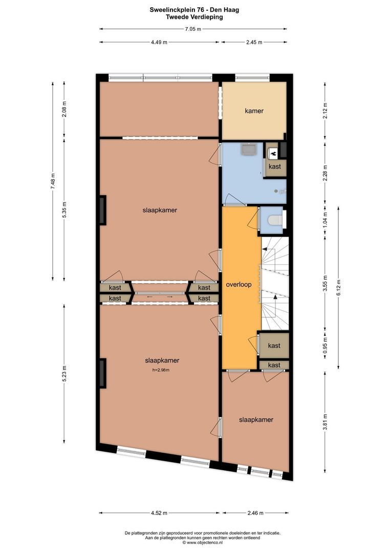
Tweede verdieping
Op deze verdieping bevinden zich drie slaapkamers. De twee grote slaapkamers zijn middels originele schuifdeuren met vaste kasten van elkaar gescheiden. De slaapkamer aan de achterzijde beschikt over een kleinere zijkamer, die uitstekend kan dienen als inloopkast, gameroom of tweede werkkamer. De derde slaapkamer bevindt zich aan de voorzijde van de woning. De onlangs gerenoveerde badkamer is voorzien van een wastafelmeubel en een douche. Tevens is hier een opstelplaats voor de wasmachine, slim weggewerkt in een ruime bergkast. Er is tevens een separaat toilet.

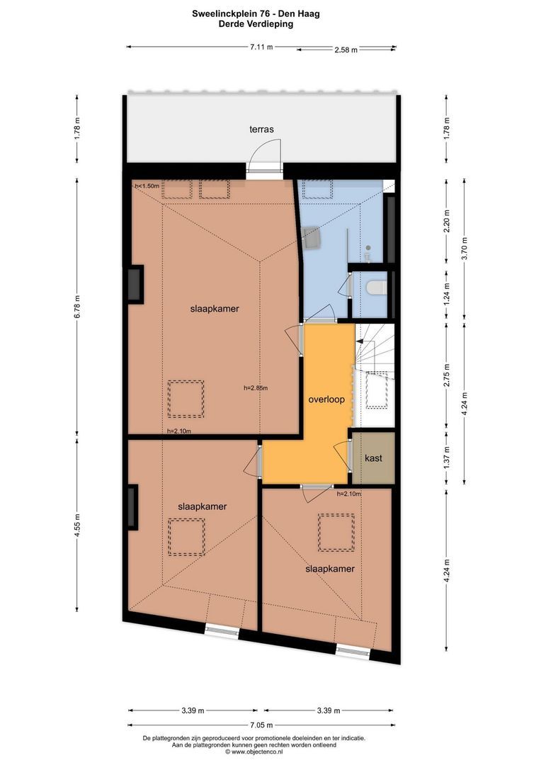
Derde verdieping
Deze gehele verdieping is recent gerenoveerd en er zijn drie zeer ruime slaapkamers gerealiseerd. De balkenstructuur is zichtbaar gebleven en door slim geplaatste ramen en dakramen zijn alle kamers licht en luchtig. De slaapkamer aan de achterzijde biedt toegang tot het balkon, gelegen op het zuidoosten. De badkamer is voorzien van een wastafel met meubel, een inloopdouche en een separaat toilet.

RENOVATIES EN ONDERHOUD
Deze monumentale woning is de afgelopen jaren zorgvuldig onderhouden en op diverse punten gemoderniseerd, met behoud van authentieke details. De badkamer op de tweede verdieping is recent volledig gerenoveerd en voorzien van moderne afwerking en sanitair. De bovenste verdieping is twee jaar geleden volledig geïsoleerd en opnieuw ingedeeld, waarbij drie ruime slaapkamers zijn gecreëerd met behoud van de zichtbare balkenstructuur. Het dak is circa vijf jaar geleden aan de buitenzijde volledig geïsoleerd. In dezelfde periode is ook het balkon gerenoveerd. De gevel aan de voorzijde is recentelijk volledig onderhouden en verkeert in uitstekende staat. De achterzijde is in zijn geheel opnieuw geschilderd. Dankzij deze updates verkeert de woning in goede staat van onderhoud en is het wooncomfort aanzienlijk verhoogd, terwijl de historische charme volledig behouden is gebleven.

ISOLATIE EN VERWARMING
Het energielabel is B. De woning is volledig voorzien van dubbele beglazing, muurisolatie en dakisolatie. Verwarming en warm water door middel van een CV-combiketel. Het bouwjaar van de woning is 1891.

PARKEREN
De woning is gelegen in een vergunningsgebied. Het aanvragen van een parkeervergunning bij de gemeente Den Haag kost circa € 95,00 per jaar, afhankelijk van beschikbaarheid en regelgeving.

HIGHLIGHTS
- Woonoppervlak 385,10 m2 (conform NEN2580)
- Inhoud 1.365,79 m2 (conform NEN2580)
- Eigen grond
- Energielabel B
- Monumentaal pand
- Volledig voorzien van dubbele beglazing en dakisolatie
- Moderne keuken voorzien van alle inbouwapparatuur
- 12 kamers in totaal, waarvan 6 slaapkamers
- 3 badkamers
- 4 toiletten
- Volledig voorzien van parketvloeren
- Balkon op het zuidoosten
- Tuin van 84 m² op het zuidoosten
- Ouderdomsclausule van toepassing
- Asbest en lood clausule van toepassing
- Uitstekende locatie, nabij strand, centrum, winkels en horeca
- Dicht bij internationale scholen en Den Haag CS per fiets of tram
- Vraagprijs € 1.850.000,00 kosten koper
- Overdracht in overleg

Disclaimer:
De informatie in deze presentatie is met zorg samengesteld, maar wij geven geen garanties met betrekking tot de volledigheid, nauwkeurigheid of actualiteit van de verstrekte informatie aangezien details kunnen veranderen. Wij raden u aan om de meest recente informatie altijd rechtstreeks bij de betrokken instanties te verifiëren. Wij waarderen uw begrip en staan klaar om eventuele vragen te beantwoorden.

Kenmerken

Overdracht

Prijs
€ 1.850.000 k.k.
Inrichting
Gestoffeerd
Status
Beschikbaar
Oplevering
In overleg

Bouw

Soort woonhuis
Herenhuis, Tussenwoning
Soort bouw
Bestaande bouw
Bouwjaar
1891
Onderhoud binnen
Goed
Onderhoud buiten
Goed

Oppervlakten en inhoud

Woonoppervlakte
360m²
Perceeloppervlakte
188m²
Inhoud
1.200m³

Indeling

Aantal kamer(s)
12
Aantal slaapkamer(s)
6
Aantal badkamer(s)
3
Verdiepingen
4
Voorzieningen
Mechanische ventilatie, TV-Kabel, Dakraam, Natuurlijke ventilatie

Energie

Energielabel
B
Isolatie
Dakisolatie, Muurisolatie, Vloerisolatie, Dubbel glas
Warm water
C.V.-ketel
Verwarming
C.V.-ketel

Buitenruimte

Ligging
Aan rustige weg, In woonwijk
Balkon
Ja
Tuin
Achtertuin
Achtertuin
Zuidoost, 85m², 775×1100cm

Garage

Locatie

[ { "address": "Sweelinckplein 76", "zipCode": "2517 GL", "city": "Den Haag", "lat": 52.0834447, "lng": 4.2860529, "heading": 0, "pitch": 0 } ]

Bekijk verloop van de zon

Uw browser ondersteunt geen WebGL

Reageer

Uw bericht is naar ons verzonden. Wij nemen zo snel mogelijk contact met u op.

Sorry, we kunnen helaas niet met zekerheid vaststellen of u een mens of een geautomatiseerde bot/spammer bent. Hierdoor kunnen we het formulier dat u heeft ingevuld niet verzenden. Probeer het opnieuw of neem direct contact op met de makelaar via e-mail.

Er is iets mis gegaan met het versturen van het formulier.
Controleer of u alle velden (goed) heeft ingevoerd en probeer het nog een keer.

recaptcha
reCAPTCHA
PrivacyTerms
telefoon

Liever telefonisch contact?

U kunt ons van maandag t/m vrijdag van 08:00 tot 18:00 bereiken op

+31 (0)70 - 212 25 89

4.9/5
Onze klanten beoordelen ons met:
4.9/5
van

Goedenavond 👋

Benieuwd naar de waarde van uw huis?

U weet het al binnen 1 minuut. Laten we beginnen!

Wat is de reden van uw aanvraag?
Ik wil graag...

Er zijn meerdere antwoorden mogelijk.

Wanneer wilt u verhuizen?

We zijn er bijna 🎉

Om het rapport op te maken hebben we een aantal gegevens nodig

recaptcha
reCAPTCHA
PrivacyTerms

Uw woningwaarde wordt berekend... 🚀

loading

Bedankt %name%! De woningwaarde van %address% is berekend 🥳

Check uw mail voor het rapport!

success
Wat is mijn huis waard?